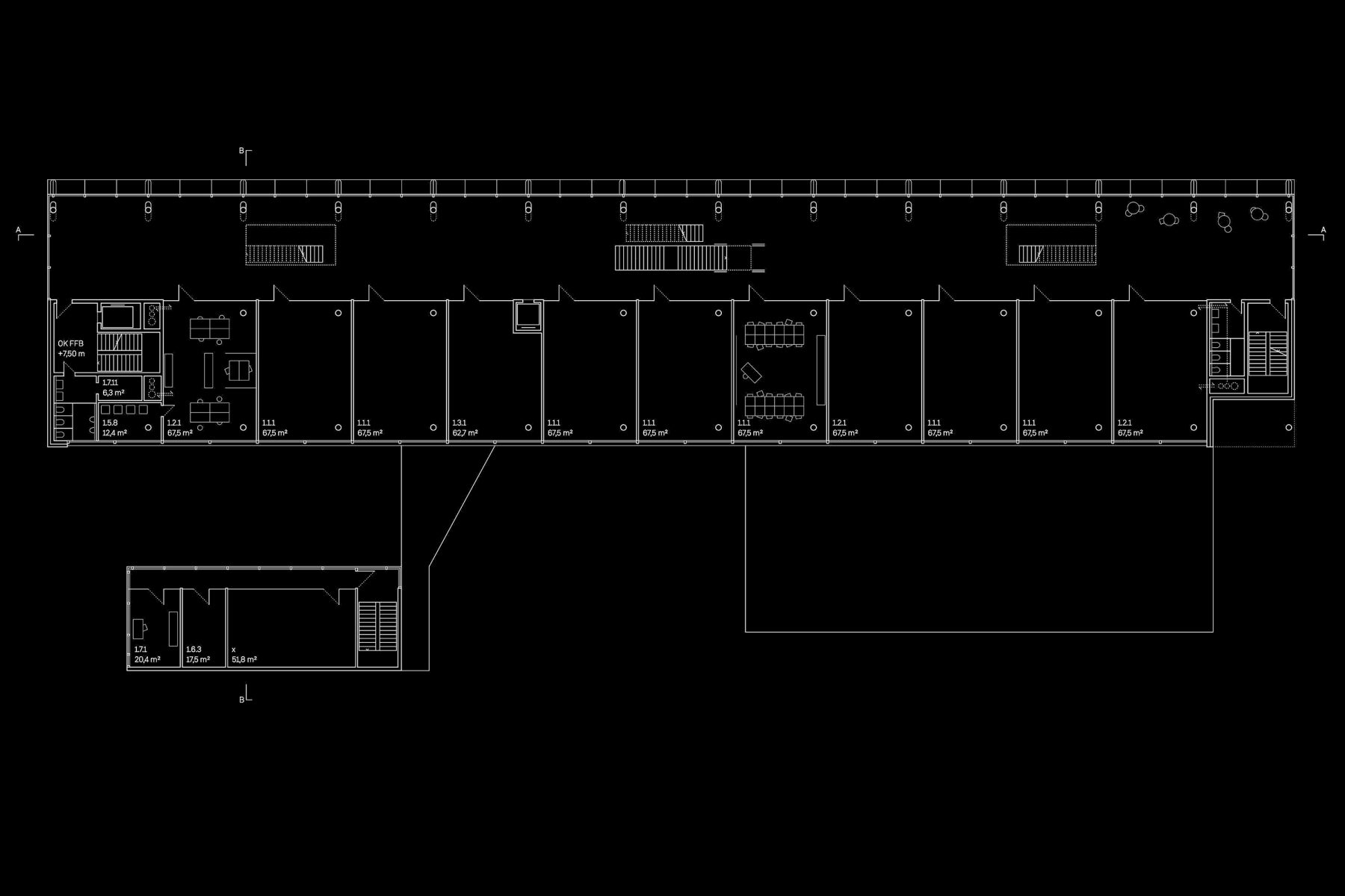
Das neue Schulhaus ist eigentlich ein doppeltes Haus. Es ist von einer einfachen, fast trivialen Struktur. Im Regelfall funktioniert es so: Einer ruhigen Raumschicht zum Hof aus Klassenzimmer, Sammlungs- und Vorbereitungsräumen wird zur Strasse hin eine in den unteren Geschossen gleich tiefe und nach oben sukzessiv schmäler werdende (geschossweise) durchgehende Halle vorgelagert.
Die Halle dient sowohl der Erschliessung als auch dem freien Lernen. Ebenso dem Treffen oder auch dem Rückzug in eine Nische. Die Klassenzimmer erhalten über die Halle zusätzliches Licht – sie sind somit zweiseitig belichtet. Das Haus ist im räumlichen Sinn verschwenderisch und versucht im strukturellen Sinn konzentriert zu sein. Die Struktur selbst ist durchaus auf eine weiche Art typologisch gemeint. Die Halle orientiert sich zur Strasse und zum Klingenpark. Ein offener, überdeckter Aussenraum verbindet Strasse und Hof. Von dort gelangt man in eine erhöht im 1. Obergeschoss liegende Stadtloggia und findet einen Rückbezug zur Strasse und Parkanlage. Erst dann betritt man durch die Türen das grosse Schulfoyer. In dieser räumlichen Sequenz und den entsprechenden Beziehungsgeflechten liegt die Haltung zur Stadt. Ein offenes Angebot und ein Schaufenster des Lernens und Lehrens. Die Halle (eine Orangerie?) ist – vornehmlich im 1. Obergeschoss – im Winter voll mit Orangenbäumen, die im Sommer über die Strasse zum Klingenpark transportiert werden können – eine Art saisonaler performativer Akt mit dem Stadtraum, der den Raum der Schule wie die Schülerinnen und Schüler selbst auf den Klingenpark hin ausweitet.
Programme School Building / Baugewerbliche Berufsschule
Location Zurich, Limmatstrasse
Client Kanton Zurich
Gross floor area 12.000 m2
Service Open Competition
in cooperation with
raumzeug Felix Lüdicke
Team Reem Almannai, Florian Fischer,
Lou Hofmann, Felix Lüdicke, Samuel Zeyse
Duration 2018